足場図面 仮設計画一般 仮設計算書 pdf変換cadデーター お気軽にお問い合わせください。 ishida design office イシダデザインオフィス 仮設計画 仮設計算書 総合仮設計画図 道路占用許可 足場設置届 図面作成 沖縄 jww 21年4月28日 未分類 沖縄で足場設置届のJw_cadの図面作成についての情報をお探しですね。 広告をクリックしてダウンロードしてください 「安全衛生規則様式第号 機械等設置届」のダウンロード (エクセル) 「足場・架設通路の部材等明細書」のダウンロード (エクセル) 「足場・架設通路の部材等明細書」のダウンロード (記入例・エクセル

大規模修繕工事 足場仮設編 もっとわくわくマンションライフ マンションライフのお役立ち情報
足場設置届 図面
足場設置届 図面-足場・仮設通路チェックリスト 使用機材認定番号一覧表 足場・架設通路概要書 足場設置届 社内審査書 足場の設置について 足場の設置について 届出を必要とするもの 足場(つり足場・張り出し足場以外は高さ10m以上)で、設置期間が60日以上のもの 現場監督のコツ『足場図面の書き方』① 更新日:年8月5日 仮設工事では現場監督は仮設計画図なるものを書かなくてはいけない。 建築工事を進めていくにあたって、敷地内にどのような仮設設備を配置するかを図面に落とし込んでいきます。 仮囲い




13 1041号 伸縮式足場構造 及びこれを用いた吊り足場設置方法 Astamuse
足場設置届・機械等設置届(設置・移転・変更) 図面作成 図面を確認して頂きます が特殊で複雑な案件が多いため様々な足場を計画することができるようになりましたので足場設置届出でお困りの方は一度お問合せください。計画図面&強度計算事業 東海地域最大級の足場施工会社株式会社ヤグミ 強度計算も含め、安全性・経済性・施工性を考慮した仮設計画図面をご提供致します。 労働基準監督署の足場届けに必要な図面も製作致しております。 設置届が必要なとき 足場参考図面のダウンロード をクリックしてダウンロードしてください 「外部足場 図面」のダウンロード (PDF) 「支保工ボックスカルバート OKサポート 図面」のダウンロード (PDF) プラグインについて 当サイトの書類をご覧頂くには、アドビリーダー(無料
当社は足場施工を専門に、愛知、岐阜、三重などの東海三県で営 業しております。 足場専門業者のノウハウを活かして最適な図面を作図します。 海外に開設したcadセンターにより格安でのご提供が可能です。 まずはお気軽にお問い合わせください。足場に関する法的規制 1 ISHIDA DESIGN OFFICE 足場の法的規制についてご紹介したいと思います。 このテーマを扱うと、どうしても表現が固くなってしまうのでご了承ください。 ご自身が関係するところをチェックすればいいと思います。 建設工事に使用する5.支保工、通路、足場の届出と措置 ①支保工、通路、足場等設置届 労働基準監督署長への届出(工事開始日の30日前までに) 様式号 設置物 規 模 事 項 図面 型枠支保工 支保の高さが35m以上のもの 1打設しようとするコンクリー
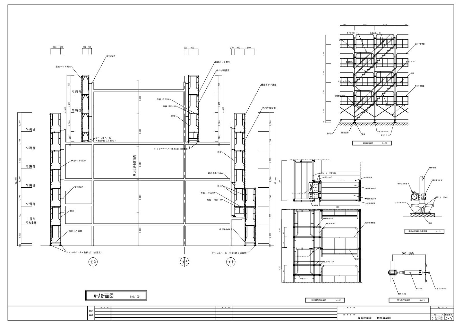
道路使用、道路占用終了後、現場の確認 占用廃止届・完了届の提出 足場・占用許可 大規模修繕、建物の外装、補修、設備の改修で足場、朝顔を設置する際必要な道路使用許可、道路占用許可、機械等設置届出の申請書、図面の作成、提出の代行をします。つり足場、張出し足場、高さが10m以上の構造足場にあっては、組立開始日から解体完了日までの期間が60日未満のもの。 6 届出期限 機械等設置・移転・変更届(様式第号)については、工事を開始する日の30日前まで。・足場外廻:下桟 H=240 設置 ・足場内廻:幅木 H=150 設置 ・足場内廻:各フロア毎 落下養生ネット 設置 ・枠組足場 ※2.0スパン毎(上部2層:1.5スパン毎) ・足場外廻:飛散シートⅡ類貼(黒色)※1層目より




仮設計画設計 鹿児島仮設機械株式会社




足場 仮囲 朝顔の道路占用 台東区ホームページ




安全衛生法 機械等設置届ひな形




足場に関する法的規制 1 足場 仮設図面 Ishida Design Office イシダデザインオフィス




選ばれる理由 旭コーポレーション




足場設置届 Jwcad 3次元cad 株式会社39kogyo




足場図面 枠組足場仮設計画システムの紹介 足場ブログ 足場のことはおまかせ 足場に関する足場ブログ




足場設置届とは 働基準監督署長に提出するもの 埼玉の中村工業




建設作業工事計画届 第条第1項 の作成方法を1級建築施工管理技士が解説 はるゆにブログ




図面作成についてのご案内 株式会社sun建築製図社 名古屋市中区 図面製作 イオニアミストプロ施工




内部仕上げ足場計画図 作成 記事no 145 建築現場監督のブログ Construction Site Director S Blog




足場設置届の必要書類一覧 足場ベストパートナー



足場設置届 Yone Report




足場設置届を提出する前に必ずチェックしたいポイントは 労働基準監督署 足場ベストパートナー




計画図面 強度計算事業 東海地域最大級の足場施工会社株式会社ヤグミ




13 1041号 伸縮式足場構造 及びこれを用いた吊り足場設置方法 Astamuse



足場設置届 Yone Report




内部仕上げ足場計画図 作成 記事no 145 建築現場監督のブログ Construction Site Director S Blog




初心者でも大丈夫 くさび足場の図面の書き方は 足場ベストパートナー



仮設計画 施工図 実施設計 仮設計画図 Bimのアイテック




建設作業工事計画届 第条第1項 の作成方法を1級建築施工管理技士が解説 はるゆにブログ




足場設置届を提出する前に必ずチェックしたいポイントは 労働基準監督署 足場ベストパートナー




足場に関する法的規制 1 足場 仮設図面 Ishida Design Office イシダデザインオフィス




仮設計画 Gloobe Construction 建築cad 福井コンピュータアーキテクト



足場 架設 足場 設置 届 記入 例




仮設計画 Gloobe Construction 建築cad 福井コンピュータアーキテクト




足場設置届を提出する前にチェックすべきポイント 必要書類の内容とは 足場職人独立開業 会社設立をサポート




安全衛生法 機械等設置届ひな形




型枠支保工高さ 届出が必要な基準と安全管理 施工者必須の知識 ゼネコン




足場設置届 Jwcad 3次元cad 株式会社39kogyo



Cad図面作成 各種申請手続き 有限会社 横山工業



機械等設置届 エクセル




図面作成についてのご案内 株式会社sun建築製図社 名古屋市中区 図面製作 イオニアミストプロ施工




事業内容 株式会社まちだ




仮設図面 可児興業株式会社 岐阜県の足場工事専門会社




図面作成についてのご案内 株式会社sun建築製図社 名古屋市中区 図面製作 イオニアミストプロ施工




安全衛生法 機械等設置届ひな形




建築工事計画届 機械等設置届 建築現場監督のブログ Construction Site Director S Blog




仮設図業務 事業 サービス Dix 株式会社ディックス




ブログ 仮設計画図の書き方




支保工 Cadデータ 型枠 Tsサポート図面 建設部門のソフトウェアとcadデータ 建設上位を狙え




建築工事計画届 機械等設置届 建築現場監督のブログ Construction Site Director S Blog




施工管理だけではない 株式会社大木組 公式ホームページ




足場設置の際に必要な書類 名古屋市南区にある足場工事会社 株式会社 栄建




足場 Cadデータ ビケ ビディ 枠組 単管 建設部門のソフトウェアとcadデータ 建設上位を狙え




足場設置届を提出する前にチェックすべきポイント 必要書類の内容とは 足場職人独立開業 会社設立をサポート




足場設置届とは 働基準監督署長に提出するもの 埼玉の中村工業




1 作成例 トップページ 現場ファーストドットコム




初心者でも大丈夫 ビケ足場の図面の書き方は 足場ベストパートナー




ブログ クサビ緊結式足場 作成事例のご紹介



単管足場




建設作業工事計画届 第条第1項 の作成方法を1級建築施工管理技士が解説 はるゆにブログ




2 条建設工事計画届 作成要領 トップページ 現場ファーストドットコム




13 1041号 伸縮式足場構造 及びこれを用いた吊り足場設置方法 Astamuse




建設作業工事計画届 第条第1項 の作成方法を1級建築施工管理技士が解説 はるゆにブログ




安全衛生法 機械等設置届ひな形




事業紹介 計画図作成 株式会社桐田総合建設 公式ホームページ




施工管理だけではない 株式会社大木組 公式ホームページ




ブログ 設置届 足場 申請代行




建設作業工事計画届 第条第1項 の作成方法を1級建築施工管理技士が解説 はるゆにブログ




1 作成例 トップページ 現場ファーストドットコム



足場 設置 届 記入 例 福岡




施工管理だけではない 株式会社大木組 公式ホームページ




仮設図業務 事業 サービス Dix 株式会社ディックス




足場計画図の描き方の基本 その 現場施工のための構造計算




道路占用許可申請 足場 仮囲い 朝顔 東京都府中市ホームページ



足場設置届 機械等設置届 設置 移転 変更 株式会社mihoma一級建築士事務所 大阪




足場設置届を提出する前にチェックすべきポイント 必要書類の内容とは 足場職人独立開業 会社設立をサポート




事業内容 有限会社 Itt 仮設足場の施工 解体から仮設資材のレンタル ドローン調査までおまかせください




仮設図業務 事業 サービス Dix 株式会社ディックス




初心者でも大丈夫 枠組足場の図面の書き方は 足場ベストパートナー




施工管理だけではない 株式会社大木組 公式ホームページ




安全衛生法 機械等設置届ひな形




有限会社 Itt 鳥取で各現場に最適な足場やクイックデッキをドローン調査などをご提案しています



緻密で正確な足場架設を支える 熟練の足場設計プロフェッショナル 大久保恒産



機械等設置届 スリーヴイアメニティ




ブログ 設置届 足場 申請代行




足場設置届 Jwcad 3次元cad 株式会社39kogyo




大規模修繕工事 足場仮設編 もっとわくわくマンションライフ マンションライフのお役立ち情報




建築工事計画届 機械等設置届 建築現場監督のブログ Construction Site Director S Blog




足場設置届を提出する前にチェックすべきポイント 必要書類の内容とは 足場職人独立開業 会社設立をサポート




ブログ 設置届 足場 申請代行



施行事例 高層特殊足場 支保工組立 大久保恒産




型枠支保工高さ 届出が必要な基準と安全管理 施工者必須の知識 ゼネコン




仮設図業務 事業 サービス Dix 株式会社ディックス




足場計画図の描き方の基本 その 現場施工のための構造計算




施工管理だけではない 株式会社大木組 公式ホームページ




図面作成についてのご案内 株式会社sun建築製図社 名古屋市中区 図面製作 イオニアミストプロ施工



2




足場設置届とは 働基準監督署長に提出するもの 埼玉の中村工業




図面製作の施工実例 株式会社sun建築製図社 名古屋市中区 図面製作 イオニアミストプロ施工




ブログ 仮設計画図の書き方




ブログ 6月 13



仮設計画 施工図 実施設計 仮設計画図 Bimのアイテック




足場設置届 Jwcad 3次元cad 株式会社39kogyo




初心者でも大丈夫 枠組足場の図面の書き方は 足場ベストパートナー




千代田区ホームページ 道路占用の許可申請




計画図面 強度計算事業 東海地域最大級の足場施工会社株式会社ヤグミ




事業紹介 計画図作成 株式会社桐田総合建設 公式ホームページ




足場設置届 Jwcad 3次元cad 株式会社39kogyo




計画図面 強度計算事業 東海地域最大級の足場施工会社株式会社ヤグミ




仮設足場 通路等の設置届 建築用語 Weeeeeb




足場計画図の描き方の基本 その 現場施工のための構造計算




足場設置の際には何が必要 届出の記入例を紹介 ひな形のダウンロード方法は 足場ベストパートナー